Phần mềm Autocad
Hướng Dẫn Thực Hành AutoCAD 2D Hiệu Quả: Nắm Vững Từ Cơ Bản Đến Nâng Cao
Để thành thạo AutoCAD, việc thực hành AutoCAD đều đặn và có hệ thống là yếu tố then chốt. Bài viết này tổng hợp các bài tập thực hành AutoCAD 2D từ cơ bản đến nâng cao, giúp bạn củng cố kiến thức và phát triển kỹ năng vẽ kỹ thuật một cách chuyên nghiệp. Chúng ta sẽ đi sâu vào từng nhóm lệnh, từ những thao tác thiết lập ban đầu đến các kỹ thuật vẽ và chỉnh sửa phức tạp.
Những Kỹ Năng Cốt Lõi Từ Bài Tập Thực Hành AutoCAD
Việc thực hành AutoCAD không chỉ là vẽ theo mẫu mà còn là quá trình phát triển các kỹ năng toàn diện:
- Làm quen giao diện và thiết lập ban đầu: Hiểu rõ không gian làm việc, các thanh công cụ, và cách cấu hình bản vẽ như đơn vị, tỷ lệ.
- Sử dụng thành thạo các lệnh vẽ cơ bản và nâng cao: Nắm vững các lệnh tắt, cách nhập và kết thúc lệnh, nhập dữ liệu tọa độ một cách chính xác.
- Kỹ năng chỉnh sửa đối tượng hiệu quả: Áp dụng các lệnh chỉnh sửa để biến đổi, sao chép, di chuyển hay cắt xén đối tượng.
- Tạo và quản lý các thành phần bản vẽ chuyên nghiệp: Bao gồm việc sử dụng Text để ghi chú, Dim để đo kích thước, Hatch để tô vật liệu, cũng như quản lý Block và Layer.
- Triển khai bản vẽ kỹ thuật một cách khoa học: Phát triển khả năng tự vẽ các bản vẽ từ tổng quan đến chi tiết, đảm bảo cấu trúc, cách trình bày đúng quy trình và tiêu chuẩn.
- Tối ưu hóa quy trình vẽ: Học các mẹo vẽ nhanh, cách đặt lại lệnh, sử dụng Lisp, VBA, Express Tool và các thủ thuật khác trong AutoCAD để tăng năng suất.
- Khả năng bóc tách khối lượng: Từ các bản vẽ đã hoàn thiện, bạn có thể thực hiện bóc tách khối lượng vật tư, vật liệu, một kỹ năng quan trọng trong nhiều ngành.
Việc nắm vững những kỹ năng này thông qua thực hành AutoCAD sẽ giúp bạn tự tin triển khai mọi dự án vẽ kỹ thuật trong công việc thực tế.
Các Bài Tập Thực Hành AutoCAD 2D Chi Tiết
Dưới đây là chuỗi các bài tập thực hành được thiết kế để bạn từng bước làm chủ AutoCAD 2D. Mỗi bài tập sẽ tập trung vào một nhóm lệnh hoặc kỹ năng cụ thể.
Bài Thực Hành AutoCAD Số 1: Làm Quen Với Lệnh LINE và Hệ Tọa Độ
Bài tập đầu tiên này sẽ giúp bạn làm quen với các thao tác cơ bản nhất trên AutoCAD, đặc biệt là lệnh LINE và cách nhập tọa độ.
Các lệnh cần thực hiện trong bài tập:
- Thiết lập bản vẽ cơ bản (unit, limits).
- Sử dụng lệnh LINE để vẽ đường thẳng.
- Các phương pháp nhập tọa độ điểm: tuyệt đối, tương đối.
- Lệnh quan sát bản vẽ ZOOM; lệnh xóa đối tượng ERASE.
Yêu cầu thực hiện:
- Mở một file bản vẽ mới, thiết lập đơn vị hệ mét.
- Thực hiện vẽ các hình theo yêu cầu.
- Lưu bản vẽ dưới dạng
D/hovaten/baitap_1.dwg.
Bài tập thực hiện:
- 3.1. Vẽ các hình sau bằng lệnh Line với tọa độ Đề-các tuyệt đối và tương đối.
Tập trung vào việc hiểu rõ cách di chuyển và xác định điểm trong không gian bản vẽ.
Bài tập thực hành AutoCAD 2D cơ bản với lệnh Line và tọa độ Đề-các- 3.2. Sử dụng lệnh Line với tọa độ cực để vẽ các hình sau:
Bài tập này giúp bạn làm quen với việc xác định điểm bằng khoảng cách và góc, rất hữu ích trong nhiều trường hợp.
Thực hành AutoCAD 2D với lệnh Line và tọa độ cực, vẽ các hình phức tạp- 3.3. Sử dụng lệnh Line và các hệ tọa độ đã học để vẽ các hình sau:
Kết hợp các phương pháp nhập tọa độ để vẽ các hình dạng đa dạng hơn, nâng cao khả năng thực hành AutoCAD của bạn.
Thực hành vẽ kỹ thuật AutoCAD 2D các hình dạng đa giác bằng lệnh Line và hệ tọa độ- 3.1. Vẽ các hình sau bằng lệnh Line với tọa độ Đề-các tuyệt đối và tương đối.
Bài Thực Hành AutoCAD Số 2: Lệnh POLYGON, RECTANG, CIRCLE và TRIM
Bài tập này sẽ giới thiệu các lệnh vẽ hình cơ bản như đa giác, hình chữ nhật, hình tròn và lệnh cắt xén đối tượng.
Các lệnh cần thực hiện trong bài tập:
- Lệnh POLYGON (đa giác), RECTANG (hình chữ nhật), CIRCLE (hình tròn).
- Lệnh TRIM (cắt xén).
- Các lệnh đã học ở bài trước: LINE, ZOOM, ERASE.
Yêu cầu thực hiện:
- Mở file mới, thiết lập đơn vị hệ mét.
- Thực hiện vẽ các hình theo yêu cầu.
- Lưu bản vẽ dưới dạng
D/hovaten/baitap_2.dwg.
Bài tập thực hiện:
- 3.1. Sử dụng lệnh Polygon vẽ các hình sau:
Tập trung vào cách tạo các đa giác đều với số cạnh và kích thước mong muốn.
Bài tập thực hành AutoCAD 2D với lệnh Polygon vẽ các hình đa giác đều- 3.2. Sử dụng lệnh Rectangle vẽ các hình sau:
Thực hành AutoCAD để vẽ các hình chữ nhật với kích thước và vị trí chính xác.
Vẽ các hình chữ nhật phức tạp bằng lệnh Rectangle trong AutoCAD 2D- 3.3. Sử dụng lệnh Circle vẽ các hình sau:
Khám phá các phương pháp vẽ hình tròn khác nhau và cách kết hợp chúng với các hình dạng khác.
Thực hành vẽ hình tròn và cung tròn với lệnh Circle trong AutoCAD 2D- 3.1. Sử dụng lệnh Polygon vẽ các hình sau:
Bài Thực Hành AutoCAD Số 3: XLINE, OSNAP, POLAR TRACKING và Ghi Kích Thước
Bài tập này giới thiệu các công cụ hỗ trợ vẽ chính xác và cách ghi kích thước bản vẽ một cách chuyên nghiệp.
Các lệnh cần thực hiện trong bài tập:
- Lệnh XLINE (đường gióng vô hạn).
- Chế độ truy bắt điểm OBJECT SNAP (OSNAP), POLAR TRACKING.
- DIMENSION STYLE và các lệnh ghi kích thước (Dim).
- Các lệnh 2D đã học ở bài trước.
Yêu cầu thực hiện:
- Mở file mới, thiết lập đơn vị hệ mét.
- Thiết lập Layer để quản lý đối tượng.
- Thiết lập Dimension Style và ghi kích thước cho bản vẽ.
- Lưu bản vẽ dưới dạng
D/hovaten/baitap_3.dwg.
Bài tập thực hiện:
- 3.1. Vẽ các hình sau bằng hai cách: sử dụng XLINE và sử dụng Polar Tracking.
So sánh hiệu quả của từng phương pháp trong việc tạo ra các đường thẳng và góc chính xác.
Sử dụng XLINE và Polar Tracking để thực hành vẽ các hình đối xứng trong AutoCAD 2D- 3.2. Sử dụng các lệnh đã học và các chế độ truy bắt điểm vẽ các hình sau:
Nâng cao khả năng thực hành AutoCAD bằng cách tận dụng tối đa OSNAP để vẽ nhanh và chính xác.
Bài tập AutoCAD 2D ứng dụng Object Snap và các lệnh vẽ cơ bản
Vẽ bản vẽ kỹ thuật chi tiết với Object Snap trong AutoCAD 2D- 3.3. Thực hiện lại bài tập 3.3. của bài tập số 1 (hình 1.3) và ghi các kích thước như yêu cầu của đề bài.
Kết hợp kỹ năng vẽ và ghi kích thước để hoàn thiện một bản vẽ kỹ thuật đầy đủ.
- 3.1. Vẽ các hình sau bằng hai cách: sử dụng XLINE và sử dụng Polar Tracking.
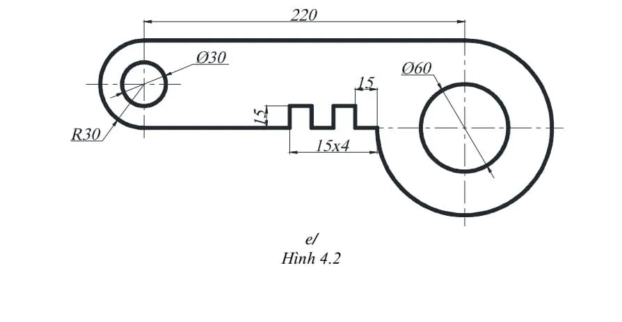
Bài Thực Hành AutoCAD Số 4: Lệnh ARC và PLINE
Bài tập này sẽ tập trung vào việc vẽ các đường cong và các đường đa tuyến liên tục.
Các lệnh cần thực hiện trong bài tập:
- Các lệnh ARC (cung tròn) và PLINE (đường đa tuyến).
- Các lệnh vẽ hình và quan sát bản vẽ đã học ở bài trước.
Yêu cầu thực hiện:
- Mở file mới, thiết lập đơn vị hệ mét.
- Thực hiện các bản vẽ trong bài tập.
- Lưu bản vẽ dưới dạng
D/hovaten/baitap_4.dwg.
Bài tập thực hiện:
- 3.1. Sử dụng lệnh ARC và các lệnh đã học vẽ các hình sau:
Làm quen với các phương pháp tạo cung tròn khác nhau, tăng cường khả năng thực hành AutoCAD trong việc vẽ các đối tượng phức tạp.
Thực hành AutoCAD 2D với lệnh ARC để vẽ các đối tượng có đường cong- 3.2. Vẽ các hình sau bằng lệnh PLINE:
Hiểu rõ ưu điểm của PLINE trong việc tạo các đường liên tục và chỉnh sửa dễ dàng hơn.
Vẽ các đối tượng phức tạp bằng lệnh PLINE trong AutoCAD 2D
Thực hành tạo đường đa tuyến (PLINE) với các đoạn thẳng và cung tròn trong AutoCAD 2D- 3.1. Sử dụng lệnh ARC và các lệnh đã học vẽ các hình sau:
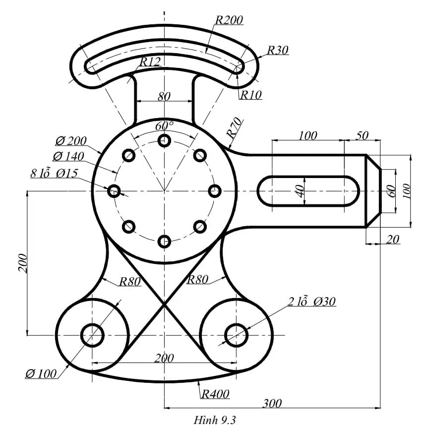
Bài Thực Hành AutoCAD Số 5: SPLINE, ELLIPSE và Lệnh Điểm
Bài tập này giới thiệu các lệnh vẽ đường cong tự do, hình elip và các lệnh liên quan đến điểm.
Các lệnh cần thực hiện trong bài tập:
- Các lệnh SPLINE (đường cong tự do), ELLIPSE (hình elip).
- Các lệnh vẽ điểm: POINT; DIVIDE; MEASURE.
- Lệnh hiển thị điểm POINT STYLE.
- Các lệnh vẽ hình đã học ở các bài trước.
Yêu cầu thực hiện:
- Mở file mới, thiết lập đơn vị hệ mét.
- Thực hiện các bản vẽ trong bài tập.
- Lưu bản vẽ dưới dạng
D/hovaten/baitap_5.dwg.
Bài tập thực hiện:
- Sử dụng các lệnh đã học vẽ các hình sau:
Áp dụng SPLINE cho các đường cong mềm mại và ELLIPSE cho các hình elip, đồng thời kết hợp các lệnh điểm để tạo ra các chi tiết nhỏ. Điều này giúp nâng cao kỹ năng thực hành AutoCAD của bạn lên một tầm cao mới.
Thực hành vẽ chi tiết máy với lệnh SPLINE và ELLIPSE trong AutoCAD 2D
Bài tập AutoCAD 2D nâng cao với các hình elip và đường cong phức tạp
Vẽ bản vẽ kỹ thuật có đường cong tự do bằng SPLINE trong AutoCAD 2D
Thực hành vẽ các chi tiết đối xứng sử dụng SPLINE và các lệnh điểm trong AutoCAD 2D
Vẽ các bộ phận cơ khí phức tạp với lệnh ELLIPSE và SPLINE trong AutoCAD 2D- Sử dụng các lệnh đã học vẽ các hình sau:
Bài Thực Hành AutoCAD Số 6: Lệnh Chỉnh Sửa Hình Ảnh Nâng Cao
Bài tập này tập trung vào các lệnh chỉnh sửa đối tượng, giúp bạn thao tác nhanh và hiệu quả trên bản vẽ.
Các lệnh cần thực hiện trong bài tập:
- Các lệnh hiệu chỉnh hình: OFFSET (tạo đối tượng song song), ERASE (xóa), TRIM (cắt), EXTEND (kéo dài), CHAMFER (vát cạnh), FILLET (bo tròn).
- Các lệnh 2D đã học.
Yêu cầu thực hiện:
- Mở file mới, thiết lập đơn vị hệ mét.
- Thực hiện các bản vẽ trong bài tập.
- Lưu bản vẽ dưới dạng
D/hovaten/baitap_6.dwg.
Bài tập thực hiện:
- Sử dụng các lệnh hiệu chỉnh như mục 1 và các lệnh vẽ hình đã học ở những bài trước, thực hiện các hình sau:
Kết hợp các lệnh vẽ và chỉnh sửa để tạo ra các bản vẽ có độ phức tạp cao, tối ưu hóa quy trình thực hành AutoCAD của bạn.
Ứng dụng các lệnh OFFSET, TRIM, EXTEND trong bài tập AutoCAD 2D
Thực hành chỉnh sửa hình học với CHAMFER và FILLET trong AutoCAD 2D
Vẽ và hiệu chỉnh các chi tiết máy bằng AutoCAD 2D, kết hợp nhiều lệnh- Sử dụng các lệnh hiệu chỉnh như mục 1 và các lệnh vẽ hình đã học ở những bài trước, thực hiện các hình sau:
Bài Thực Hành AutoCAD Số 7: Lệnh Biến Đổi và Sao Chép Hình
Bài tập này giúp bạn làm chủ các lệnh biến đổi và sao chép đối tượng, tăng tốc độ vẽ.
Các lệnh cần thực hiện trong bài tập:
- Các lệnh biến đổi và sao chép hình: MOVE (di chuyển), COPY (sao chép), ROTATE (xoay), SCALE (tỷ lệ), MIRROR (đối xứng), STRETCH (kéo giãn), ARRAY (mảng).
Yêu cầu thực hiện:
- Mở file mới, thiết lập đơn vị hệ mét.
- Thực hiện các bản vẽ trong bài tập.
- Lưu bản vẽ dưới dạng
D/hovaten/baitap_7.dwg.
Bài tập thực hiện:
- Với các lệnh biến đổi và sao chép hình, cùng với các lệnh đã học, hãy thực hiện các hình vẽ sau:
Tối ưu hóa thời gian vẽ bằng cách sử dụng các lệnh biến đổi và sao chép để tạo ra các đối tượng tương tự hoặc lặp lại. Đây là một phần quan trọng của việc thực hành AutoCAD hiệu quả.
Thực hành sử dụng lệnh COPY và MOVE để bố trí đối tượng trong AutoCAD 2D
Áp dụng lệnh ROTATE và MIRROR để tạo các chi tiết đối xứng trong AutoCAD 2D
Vẽ các đối tượng lặp lại bằng lệnh ARRAY (mảng) trong bài tập AutoCAD 2D- Với các lệnh biến đổi và sao chép hình, cùng với các lệnh đã học, hãy thực hiện các hình vẽ sau:
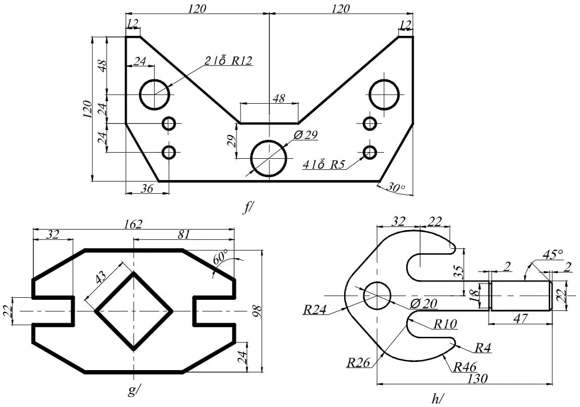
Bài Thực Hành AutoCAD Số 8: Lệnh HATCH – Tô Vật Liệu Cho Mặt Cắt
Bài tập cuối cùng trong chuỗi 2D này sẽ hướng dẫn bạn cách tô vật liệu cho các mặt cắt, giúp bản vẽ trở nên trực quan và dễ hiểu hơn.
Các lệnh cần thực hiện trong bài tập:
- Các lệnh vẽ hình và hiệu chỉnh đã học.
- Lệnh vá tuyến ảnh cho mặt cắt: HATCH.
Yêu cầu thực hiện:
- Mở file mới, thiết lập đơn vị hệ mét.
- Thực hiện các bản vẽ trong bài tập.
- Lưu bản vẽ dưới dạng
D/hovaten/baitap_8.dwg.
Bài tập thực hiện:
- Vẽ các hình sau bằng lệnh đã học và gạch mặt cắt cho bản vẽ.
Hoàn thiện bản vẽ kỹ thuật bằng cách áp dụng các mẫu hatch phù hợp, mô phỏng vật liệu trên các mặt cắt. Đây là một kỹ năng cần thiết khi thực hành AutoCAD cho các bản vẽ chi tiết.
Thực hành tô vật liệu (HATCH) cho các mặt cắt chi tiết trong AutoCAD 2D
Áp dụng lệnh HATCH để làm rõ các phần mặt cắt trong bản vẽ kỹ thuật AutoCAD 2D- Vẽ các hình sau bằng lệnh đã học và gạch mặt cắt cho bản vẽ.
Bài Tập Ôn Tập Tổng Hợp Kỹ Năng AutoCAD 2D
Sau khi hoàn thành các bài tập trên, hãy thử sức với các bài ôn tập tổng hợp để kiểm tra và củng cố toàn bộ kỹ năng thực hành AutoCAD 2D của bạn. Các bài tập này sẽ yêu cầu bạn vận dụng linh hoạt tất cả các lệnh và kỹ thuật đã học.
Các lệnh cần thực hiện trong bài tập:
- Tất cả các lệnh vẽ hình và hiệu chỉnh đã học từ các bài trước.
Bài tập:
Thực hiện các bản vẽ dưới đây, áp dụng linh hoạt các lệnh đã học để hoàn thành chúng một cách chính xác và nhanh chóng nhất.
Bài tập ôn tập AutoCAD 2D tổng hợp kỹ năng vẽ và chỉnh sửa cơ bản
Thực hành AutoCAD 2D ôn tập các lệnh vẽ hình tròn và cung tròn phức tạp
Bài tập tổng hợp các lệnh hiệu chỉnh và đối xứng trong AutoCAD 2D
Ôn tập AutoCAD 2D với các bản vẽ cơ khí có chi tiết lặp lại và đối xứng
Thực hành vẽ mặt cắt và tô vật liệu cho các chi tiết kỹ thuật trong AutoCAD 2D
Bài tập AutoCAD 2D ôn tập các lệnh vẽ và chỉnh sửa cho bản vẽ kiến trúc
Ôn tập các kỹ thuật vẽ đối tượng bằng lệnh PLINE và ARC trong AutoCAD 2D
Thực hành các lệnh biến đổi hình học như SCALE, ROTATE và MIRROR trong AutoCAD 2D
Bài tập tổng hợp AutoCAD 2D yêu cầu kết hợp nhiều lệnh để tạo bản vẽ hoàn chỉnh
Thực Hành AutoCAD 3D: Nâng Tầm Kỹ Năng Thiết Kế
Sau khi đã thành thạo AutoCAD 2D, việc chuyển sang thực hành AutoCAD 3D sẽ mở ra một thế giới mới trong thiết kế. Các bài tập 3D sẽ giúp bạn hình dung và xây dựng các mô hình không gian ba chiều, tạo ra những bản vẽ trực quan và sinh động hơn. Điều này đặc biệt quan trọng trong các ngành như kiến trúc, cơ khí, và thiết kế sản phẩm.
Hình ảnh giới thiệu bài tập thực hành AutoCAD 3D từ cơ bản đến nâng cao
Việc kiên trì thực hành AutoCAD 2D và 3D là con đường duy nhất để trở thành một chuyên gia thiết kế và vẽ kỹ thuật. Hãy dành thời gian mỗi ngày để luyện tập, khám phá các lệnh mới và áp dụng chúng vào các dự án thực tế.























































Thực hành AutoCAD 2D với lệnh Line và tọa độ cực, vẽ các hình phức tạp
Thực hành vẽ kỹ thuật AutoCAD 2D các hình dạng đa giác bằng lệnh Line và hệ tọa độ
Bài tập thực hành AutoCAD 2D với lệnh Polygon vẽ các hình đa giác đều
Vẽ các hình chữ nhật phức tạp bằng lệnh Rectangle trong AutoCAD 2D
Thực hành vẽ hình tròn và cung tròn với lệnh Circle trong AutoCAD 2D
Bài tập AutoCAD 2D ứng dụng Object Snap và các lệnh vẽ cơ bản
Vẽ bản vẽ kỹ thuật chi tiết với Object Snap trong AutoCAD 2D
Thực hành AutoCAD 2D với lệnh ARC để vẽ các đối tượng có đường cong
Vẽ các đối tượng phức tạp bằng lệnh PLINE trong AutoCAD 2D
Thực hành tạo đường đa tuyến (PLINE) với các đoạn thẳng và cung tròn trong AutoCAD 2D
Thực hành vẽ chi tiết máy với lệnh SPLINE và ELLIPSE trong AutoCAD 2D
Bài tập AutoCAD 2D nâng cao với các hình elip và đường cong phức tạp
Vẽ bản vẽ kỹ thuật có đường cong tự do bằng SPLINE trong AutoCAD 2D
Thực hành vẽ các chi tiết đối xứng sử dụng SPLINE và các lệnh điểm trong AutoCAD 2D
Vẽ các bộ phận cơ khí phức tạp với lệnh ELLIPSE và SPLINE trong AutoCAD 2D
Ứng dụng các lệnh OFFSET, TRIM, EXTEND trong bài tập AutoCAD 2D
Thực hành chỉnh sửa hình học với CHAMFER và FILLET trong AutoCAD 2D
Vẽ và hiệu chỉnh các chi tiết máy bằng AutoCAD 2D, kết hợp nhiều lệnh
Thực hành sử dụng lệnh COPY và MOVE để bố trí đối tượng trong AutoCAD 2D
Áp dụng lệnh ROTATE và MIRROR để tạo các chi tiết đối xứng trong AutoCAD 2D
Vẽ các đối tượng lặp lại bằng lệnh ARRAY (mảng) trong bài tập AutoCAD 2D
Thực hành tô vật liệu (HATCH) cho các mặt cắt chi tiết trong AutoCAD 2D
Áp dụng lệnh HATCH để làm rõ các phần mặt cắt trong bản vẽ kỹ thuật AutoCAD 2D