Phần mềm Autocad
Hướng Dẫn Sử Dụng AutoCAD Plant 3D Hiệu Quả Cho Người Mới Bắt Đầu
AutoCAD Plant 3D là một phần mềm thiết kế chuyên dụng của Autodesk, được xây dựng trên nền tảng AutoCAD mạnh mẽ. Nó cung cấp các công cụ cần thiết cho kỹ sư để thiết kế, mô hình hóa và tạo tài liệu chi tiết cho các nhà máy quy trình, hệ thống ống dẫn, thiết bị và cấu trúc hỗ trợ trong các ngành công nghiệp như dầu khí, hóa chất, năng lượng và sản xuất. Việc nắm vững cách sử dụng phần mềm này là chìa khóa để tối ưu hóa hiệu suất và chất lượng dự án.
AutoCAD Plant 3D là gì và tại sao nó quan trọng?
AutoCAD Plant 3D giúp các kỹ sư tạo ra mô hình 3D chi tiết của nhà máy, bao gồm cả sơ đồ P&ID (Process and Instrumentation Diagram) tích hợp. Các ứng dụng chính của phần mềm bao gồm thiết kế sơ bộ, thiết kế chi tiết, phân tích tối ưu hóa và tạo tài liệu tự động. Nó đóng vai trò quan trọng trong việc tăng năng suất làm việc, cải thiện chất lượng thiết kế, thúc đẩy cộng tác hiệu quả giữa các thành viên trong nhóm và giảm thiểu chi phí phát sinh trong quá trình xây dựng và vận hành nhờ khả năng phát hiện lỗi sớm.
Mô hình 3D chi tiết của nhà máy hóa chất được thiết kế bằng AutoCAD Plant 3D.
Với AutoCAD Plant 3D, bạn có thể dễ dàng tạo và chỉnh sửa các sơ đồ P&ID, xây dựng mô hình 3D chi tiết với thư viện đối tượng phong phú, thực hiện phân tích dòng chảy và ứng suất, cũng như tự động hóa việc tạo ra các bản vẽ kỹ thuật và danh sách vật liệu. Khả năng kết nối với các phần mềm Autodesk khác như AutoCAD, Revit, Navisworks cũng giúp tạo ra một môi trường làm việc tích hợp và liền mạch.
Chuẩn bị trước khi bắt đầu sử dụng AutoCAD Plant 3D
Để có trải nghiệm tốt nhất và đảm bảo hiệu quả khi sử dụng AutoCAD Plant 3D, việc chuẩn bị một tài khoản bản quyền là vô cùng quan trọng. Tài khoản Plant 3D bản quyền là giấy phép hợp pháp, cho phép bạn truy cập đầy đủ các công cụ mạnh mẽ, nhận các bản cập nhật mới nhất, hỗ trợ kỹ thuật chuyên nghiệp từ nhà phát hành và tận hưởng những tính năng ưu việt của phiên bản chính thức.
Việc sử dụng phần mềm bản quyền giúp người dùng an tâm về nhiều khía cạnh:
- Bảo mật dữ liệu: Tránh nguy cơ virus, mã độc, mất dữ liệu và các lỗ hổng bảo mật.
- Hiệu năng ổn định: Phần mềm được tối ưu hóa, giảm thiểu tình trạng máy tính chạy chậm, xung đột phần mềm.
- Tuân thủ pháp lý: Tránh vi phạm bản quyền, rủi ro pháp lý và đảm bảo nhận được hỗ trợ kỹ thuật đầy đủ.
- Tính năng đầy đủ: Tận dụng mọi chức năng của phần mềm mà không bị giới hạn như các phiên bản không chính thức.
Thiết kế hệ thống đường ống công nghiệp với phần mềm AutoCAD Plant 3D bản quyền.
Nếu bạn đang tìm kiếm một địa chỉ uy tín để nâng cấp tài khoản Plant 3D bản quyền, dpstore3d.com là một lựa chọn đáng cân nhắc. Họ cam kết cung cấp tài khoản chính chủ được kích hoạt từ email cá nhân của bạn, với mức giá hợp lý và hỗ trợ nhanh chóng 12/24. Thông tin khách hàng cũng được bảo mật tuyệt đối.
Hướng dẫn cài đặt AutoCAD Plant 3D bản quyền
Sau khi có tài khoản Plant 3D bản quyền, bạn có thể tiến hành cài đặt phần mềm theo các bước chi tiết sau đây để bắt đầu quá trình hướng dẫn sử dụng AutoCAD Plant 3D:
Bước 1: Truy cập website Autodesk và đăng nhập
Mở trình duyệt web và truy cập vào trang chủ của Autodesk tại: https://www.autodesk.com. Sử dụng thông tin tài khoản bạn đã được cung cấp hoặc đã đăng ký để đăng nhập.
Bước 2: Chọn mục “Products and Services”
Sau khi đăng nhập thành công, bạn sẽ thấy hình ảnh đại diện hoặc biểu tượng tài khoản của mình ở góc trên bên phải màn hình. Nhấp vào đó và chọn mục “Products and Services” từ menu thả xuống.
Bước 3: Chọn phần mềm Plant 3D, phiên bản, ngôn ngữ và cài đặt
Trong danh sách các sản phẩm, tìm và chọn “Plant 3D”. Tiếp theo, chọn phiên bản phần mềm (ví dụ: 2024, 2025) và ngôn ngữ cài đặt mong muốn. Cuối cùng, nhấp vào nút “Install” để tải xuống trình cài đặt.
Bước 4: Chạy file cài đặt
Tìm file cài đặt (thường có định dạng .exe) mà bạn vừa tải về và chạy nó. Thực hiện theo các hướng dẫn trên màn hình để hoàn tất quá trình cài đặt.
Bước 5: Đăng nhập tài khoản Autodesk
Sau khi quá trình cài đặt kết thúc, một bảng thông báo đăng nhập sẽ xuất hiện khi bạn khởi động Plant 3D lần đầu. Hãy đăng nhập bằng tài khoản Autodesk của bạn (tài khoản đã được kích hoạt bản quyền).
Bước 6: Kiểm tra License
Để đảm bảo rằng bản quyền đã được kích hoạt chính xác, bạn có thể kiểm tra License. Trong giao diện Plant 3D, nhấp vào biểu tượng tài khoản ở góc phải, sau đó chọn “License Manager”. Thông tin về bản quyền của bạn sẽ được hiển thị tại đây.
Các bước cơ bản để bắt đầu sử dụng AutoCAD Plant 3D
Khi phần mềm đã được cài đặt và kích hoạt bản quyền, bạn đã sẵn sàng khám phá các tính năng của nó. Dưới đây là hướng dẫn sử dụng AutoCAD Plant 3D với các bước cơ bản:
Tìm hiểu giao diện làm việc:
- Ribbon: Giống như các sản phẩm AutoCAD khác, Plant 3D có giao diện Ribbon với các tab (Home, P&ID, Plant 3D, Spec Editor, v.v.) chứa các công cụ và lệnh được sắp xếp theo nhóm chức năng.
- Project Manager: Đây là cửa sổ quản lý tất cả các tệp và bản vẽ liên quan đến dự án của bạn (P&ID, mô hình 3D, bản vẽ isometric, báo cáo). Nó là trung tâm để điều hướng và tổ chức dự án.
- Tool Palettes: Chứa các thư viện thiết bị, van, phụ kiện và các thành phần P&ID mà bạn có thể kéo và thả vào bản vẽ.
- Command Line: Dùng để nhập lệnh trực tiếp hoặc xem các nhắc nhở của phần mềm.
Tạo dự án mới và thiết lập P&ID:
- Khởi tạo dự án: Từ Project Manager, chọn “New Project” để tạo một dự án mới. Đặt tên, chọn thư mục lưu trữ và cấu hình các cài đặt ban đầu.
- Tạo bản vẽ P&ID: Trong Project Manager, chuột phải vào thư mục P&ID Drawings và chọn “New P&ID Drawing”. Bạn sẽ có một không gian làm việc để vẽ sơ đồ quy trình.
- Vẽ P&ID: Sử dụng các công cụ trong tab P&ID của Ribbon và Tool Palettes để thêm các thiết bị (Equipment), đường ống quy trình (Line), van (Valve), dụng cụ đo (Instrument) vào bản vẽ. Các thành phần này có thông tin dữ liệu (tag, kích thước, loại) có thể được gán và quản lý.
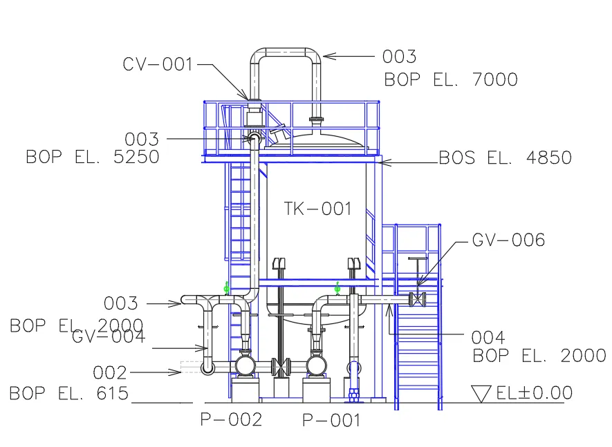
Sơ đồ P&ID (Process and Instrumentation Diagram) được tạo trong AutoCAD Plant 3D.Thiết kế hệ thống đường ống 3D:
- Tạo mô hình 3D: Trong Project Manager, chuột phải vào thư mục Plant 3D Models và chọn “New Plant 3D Drawing”.
- Chèn thiết bị: Sử dụng Tool Palettes hoặc các lệnh trong tab Plant 3D để chèn các thiết bị chính của nhà máy (bồn chứa, bơm, trao đổi nhiệt). Bạn có thể định vị chúng bằng cách sử dụng các công cụ AutoCAD 3D cơ bản.
- Vẽ đường ống: Đây là tính năng cốt lõi. Sử dụng lệnh “Pipe” trong Ribbon. Chọn Pipe Spec (thông số kỹ thuật đường ống, bao gồm vật liệu, kích thước, áp suất) và kích thước đường ống. Sau đó, vẽ đường ống từ các cổng của thiết bị hoặc các điểm nối đã có. Plant 3D sẽ tự động chèn các phụ kiện (khuỷu, tê, mặt bích) và van phù hợp theo Pipe Spec.
- Kiểm tra xung đột: Plant 3D có khả năng phát hiện xung đột (clash detection) giữa các thành phần. Điều này rất quan trọng để tránh các vấn đề trong quá trình thi công.
Chèn và định vị thiết bị:
- Sử dụng thư viện thiết bị có sẵn hoặc tạo thiết bị tùy chỉnh bằng cách nhập từ các bản vẽ AutoCAD 3D khác.
- Sử dụng các công cụ như
MOVE,ROTATE,ALIGNđể định vị chính xác các thiết bị trong không gian 3D.
Tạo bản vẽ và báo cáo:
- Bản vẽ Orthographic: Từ Project Manager, chuột phải vào thư mục Orthographic Drawings và chọn “New Orthographic Drawing”. Bạn có thể tạo các bản vẽ mặt bằng, mặt đứng, mặt cắt từ mô hình 3D của mình.
- Bản vẽ Isometric: Plant 3D có khả năng tự động tạo bản vẽ Isometric (Isos) từ các đường ống đã mô hình hóa. Các bản vẽ này bao gồm kích thước, danh sách vật liệu (BOM) và các thông tin quan trọng khác.
- Tạo báo cáo: Sử dụng chức năng Data Manager để xem và quản lý dữ liệu của các thành phần trong dự án. Bạn có thể xuất các báo cáo về danh sách vật liệu, danh sách thiết bị, van, v.v.
Chuyển đổi mô hình thiết kế 3D từ Plant 3D sang AutoCAD để kiểm tra và chỉnh sửa.
Mẹo và thủ thuật sử dụng AutoCAD Plant 3D hiệu quả
Để tối ưu hóa quá trình làm việc với AutoCAD Plant 3D, hãy lưu ý một số mẹo sau:
- Sử dụng Pipe Spec Editor: Nắm vững cách tùy chỉnh và tạo các thông số kỹ thuật đường ống (Pipe Specs) mới để phù hợp với tiêu chuẩn dự án của bạn.
- Hiểu rõ Project Setup: Các cài đặt trong Project Setup ảnh hưởng đến cách dữ liệu được quản lý, cách các thành phần hoạt động và hiển thị. Dành thời gian cấu hình nó một cách cẩn thận.
- Liên kết P&ID và mô hình 3D: Luôn đảm bảo rằng các thành phần trong P&ID được liên kết với mô hình 3D để tận dụng tối đa khả năng kiểm tra nhất quán của Plant 3D.
- Sử dụng công cụ kiểm tra xung đột: Thường xuyên chạy công cụ kiểm tra xung đột để phát hiện sớm các vấn đề về không gian.
- Luyện tập thường xuyên: Giống như mọi phần mềm kỹ thuật, việc sử dụng Plant 3D đòi hỏi thực hành liên tục để thành thạo các lệnh và quy trình làm việc.
Giao diện người dùng thân thiện của AutoCAD Plant 3D hỗ trợ quy trình thiết kế nhà máy.
Kết luận
AutoCAD Plant 3D là một công cụ mạnh mẽ và không thể thiếu cho các kỹ sư và nhà thiết kế trong ngành công nghiệp quy trình. Việc nắm vững hướng dẫn sử dụng AutoCAD Plant 3D không chỉ giúp tăng cường hiệu quả làm việc mà còn đảm bảo chất lượng và độ chính xác của các dự án thiết kế nhà máy. Với khả năng tích hợp P&ID, mô hình 3D chi tiết và tự động hóa tài liệu, Plant 3D thực sự là một giải pháp toàn diện.
Để có thể trải nghiệm toàn bộ tính năng và nhận được sự hỗ trợ tốt nhất, việc sở hữu tài khoản Plant 3D bản quyền là điều kiện tiên quyết. Liên hệ với dpstore3d.com ngay hôm nay để được tư vấn và hỗ trợ chi tiết nhất trong việc nâng cấp tài khoản bản quyền, giúp bạn tự tin bắt đầu hành trình thiết kế chuyên nghiệp với AutoCAD Plant 3D.






















































Sơ đồ P&ID (Process and Instrumentation Diagram) được tạo trong AutoCAD Plant 3D.
Chuyển đổi mô hình thiết kế 3D từ Plant 3D sang AutoCAD để kiểm tra và chỉnh sửa.