Phần mềm Autocad
Hướng Dẫn Chi Tiết Thực Hành Bản Vẽ AutoCAD Cơ Bản Cho Người Mới Bắt Đầu
Để thành thạo AutoCAD, việc nắm vững các kiến thức cơ bản và thực hành thường xuyên là vô cùng quan trọng. Bài viết này sẽ cung cấp một lộ trình học tập chi tiết thông qua các bài tập thực hành bản vẽ AutoCAD cơ bản, giúp bạn xây dựng nền tảng vững chắc và tự tin ứng dụng phần mềm vào công việc thiết kế kỹ thuật. Từ việc làm quen với giao diện đến việc sử dụng các lệnh vẽ và hiệu chỉnh chuyên nghiệp, mọi kiến thức đều được trình bày rõ ràng, dễ hiểu.
Hình ảnh minh họa khóa học vẽ kỹ thuật AutoCAD cơ bản, giúp người học làm quen với bản vẽ AutoCAD
Nắm Vững Giao Diện và Thiết Lập Bản Vẽ Cơ Bản trong AutoCAD
Trước khi bắt tay vào vẽ, việc làm quen với giao diện AutoCAD và thiết lập môi trường làm việc là bước đầu tiên và cần thiết. Bạn cần hiểu cách sử dụng các lệnh tắt, nhập lệnh, kết thúc lệnh và nhập dữ liệu. Đồng thời, việc thiết lập cơ bản cho bản vẽ như đơn vị, hiển thị (crosshair, display) cũng rất quan trọng để đảm bảo độ chính xác và hiệu quả.
Bạn cũng sẽ học cách quan sát bản vẽ một cách linh hoạt bằng các lệnh như ZOOM và cách xóa các đối tượng không mong muốn bằng lệnh ERASE. Nắm bắt được cách tạo và sử dụng Block, Layer trong Autocad sẽ giúp bạn quản lý bản vẽ một cách khoa học và chuyên nghiệp ngay từ đầu.
Các Lệnh Vẽ Cơ Bản Trong AutoCAD 2D (Bài Thực Hành 1-5)
Phần này sẽ tập trung vào các lệnh vẽ hình học 2D cơ bản, là nền tảng cho mọi bản vẽ kỹ thuật.
Bài Thực Hành Số 1: Làm Quen Với Lệnh LINE và Hệ Tọa Độ
Trong bài tập này, bạn sẽ thực hành sử dụng lệnh LINE để vẽ các đối tượng bằng các phương pháp nhập tọa độ khác nhau:
- Lệnh thiết lập bản vẽ: crosshair, display.
- Sử dụng lệnh LINE: Nắm vững các phương pháp nhập tọa độ điểm như tọa độ Decac tuyệt đối, tọa độ Decac tương đối và tọa độ cực.
- Lệnh quan sát bản vẽ: ZOOM.
- Lệnh xóa đối tượng: ERASE.
Yêu cầu thực hiện là mở một file mới, thiết lập bản vẽ với đơn vị là hệ mét, sau đó thực hiện các bản vẽ được cung cấp. Cuối cùng, lưu bản vẽ vào thư mục của bạn với tên baitap_1.dwg.
1.1. Vẽ hình bằng lệnh Line với tọa độ Decac tuyệt đối và tương đối
Bài tập thực hành AutoCAD 2D cơ bản số 1, vẽ các hình hình học đơn giản bằng lệnh LINE và hệ tọa độ Descartes
1.2. Vẽ hình bằng lệnh Line với tọa độ cực
Thực hành bản vẽ AutoCAD cơ bản với lệnh LINE và hệ tọa độ cực, tạo các hình dạng có góc và chiều dài xác định
1.3. Vẽ hình bằng lệnh Line và các hệ tọa độ
Mẫu bài tập AutoCAD 2D về các hệ tọa độ khác nhau khi sử dụng lệnh LINE để vẽ các bản vẽ kỹ thuật cơ bản
Bài Thực Hành Số 2: Vẽ Đa Giác, Hình Chữ Nhật và Hình Tròn
Bài tập này giới thiệu các lệnh vẽ hình học cơ bản khác: POLYGON, RECTANG và CIRCLE. Bạn sẽ thực hành vẽ các đối tượng này và kết hợp với lệnh TRIM để cắt xén.
Các lệnh cần thực hiện:
- Lệnh thiết lập bản vẽ, crosshair, display.
- Sử dụng lệnh LINE và các phương pháp nhập tọa độ điểm.
- Lệnh POLYGON, RECTANG, CIRCLE, TRIM.
- Lệnh quan sát bản vẽ ZOOM; lệnh xóa đối tượng ERASE.
2.1. Sử dụng lệnh Polygon vẽ các hình
Hình ảnh bài tập thực hành AutoCAD với lệnh POLYGON, tạo các đa giác đều trong bản vẽ cơ bản
2.2. Sử dụng lệnh Rectangle vẽ các hình
Thực hành bản vẽ AutoCAD cơ bản với lệnh RECTANGLE, vẽ các hình chữ nhật đơn giản
2.3. Sử dụng lệnh Circle vẽ các hình
Bài tập AutoCAD 2D sử dụng lệnh CIRCLE để vẽ các hình tròn với nhiều phương pháp khác nhau, tối ưu bản vẽ cơ bản
Bài Thực Hành Số 3: Hỗ Trợ Vẽ Chính Xác Với XLINE, OBJECT SNAP và POLAR TRACKING
Trong bài tập này, bạn sẽ làm quen với các công cụ hỗ trợ vẽ chính xác cao trong AutoCAD, đặc biệt hữu ích cho các bản vẽ kỹ thuật phức tạp.
Các lệnh cần thực hiện:
- Lệnh XLINE để tạo các đường gióng vô hạn.
- Chế độ OBJECT SNAP giúp truy bắt điểm chính xác (điểm cuối, điểm giữa, tâm, tiếp tuyến…).
- POLAR TRACKING hỗ trợ vẽ theo các góc độ cố định.
- DIMENSION STYLE và các lệnh ghi kích thước.
- Các lệnh 2D đã học ở bài trước.
Yêu cầu thực hiện: mở file mới, thiết lập bản vẽ đơn vị hệ mét, thiết lập Layer, thiết lập Dimension Style và ghi kích thước, sau đó thực hiện các bản vẽ và lưu với tên baitap_3.dwg.
3.1. Vẽ hình bằng XLINE và Polar Tracking
Bản vẽ AutoCAD 2D thực hành sử dụng XLINE và Polar Tracking để tạo các đường gióng và vẽ chính xác, giúp thành thạo các kỹ năng cơ bản
3.2. Sử dụng lệnh đã học và các chế độ truy bắt điểm
Bài tập AutoCAD 2D ứng dụng các lệnh vẽ cơ bản và chế độ truy bắt điểm OBJECT SNAP để hoàn thiện bản vẽ kỹ thuật
Hình vẽ mẫu trong bài tập AutoCAD 2D, kết hợp nhiều lệnh vẽ và chế độ truy bắt điểm để rèn luyện kỹ năng vẽ bản vẽ cơ bản
3.3. Thực hiện lại bài tập 3.3 của bài tập số 1 (hình 1.3) và ghi các kích thước như yêu cầu của đề bài.
Bài Thực Hành Số 4: Vẽ Cung Tròn và Đường Đa Tuyến Với ARC và PLINE
Bài tập này sẽ giúp bạn làm chủ các lệnh vẽ đường cong và đường đa tuyến, tạo nên các hình dạng phức tạp hơn.
Các lệnh cần thực hiện:
- Các lệnh ARC và PLINE.
- Các lệnh vẽ hình đã học ở bài trước.
- Các lệnh quan sát bản vẽ và các lệnh 2D khác.
4.1. Sử dụng lệnh ARC và các lệnh đã học
Thực hành bản vẽ AutoCAD với lệnh ARC, tạo các cung tròn và hình dạng phức tạp hơn trong AutoCAD 2D
4.2. Vẽ hình bằng lệnh PLINE
Mẫu bản vẽ AutoCAD 2D sử dụng lệnh PLINE để tạo các đường đa tuyến liên tục, giúp vẽ nhanh các đối tượng
Ví dụ bản vẽ AutoCAD 2D thực hành lệnh PLINE để xây dựng các hình dạng phức tạp, phát triển kỹ năng vẽ cơ bản
Bài Thực Hành Số 5: Vẽ Đường Cong Mượt Mà và Elip Với SPLINE, ELLIPSE
Tiếp tục với các lệnh vẽ hình nâng cao, bạn sẽ khám phá cách tạo đường cong tự do và hình elip.
Các lệnh cần thực hiện:
- Các lệnh SPLINE, ELLIPSE.
- Các lệnh vẽ điểm: POINT, DIVIDE, MEASURE.
- Lệnh hiển thị điểm POINT STYLE.
- Các lệnh vẽ hình đã học ở các bài trước.
5.1. Sử dụng các lệnh đã học để vẽ các hình sau
Bản vẽ thực hành AutoCAD 2D với lệnh SPLINE và ELLIPSE, vẽ các đường cong mềm mại và hình elip chính xác
Mẫu bài tập AutoCAD cơ bản, ứng dụng các lệnh POINT, DIVIDE, MEASURE để chia và đánh dấu các điểm trên bản vẽ
Bản vẽ AutoCAD 2D phức tạp hơn, sử dụng kết hợp SPLINE, ELLIPSE và các lệnh vẽ cơ bản để rèn luyện kỹ năng
Thực hành bản vẽ AutoCAD cơ bản, tập trung vào việc tạo ra các đường cong và hình elip chuẩn xác cho thiết kế
Bài tập AutoCAD 2D kết hợp các lệnh POINT, DIVIDE và MEASURE để phân chia và kiểm soát đối tượng trên bản vẽ
Các Lệnh Hiệu Chỉnh Bản Vẽ Nâng Cao (Bài Thực Hành 6)
Khi đã vẽ được các đối tượng, việc chỉnh sửa chúng để đạt được độ chính xác và thẩm mỹ mong muốn là rất cần thiết. Bài tập này sẽ tập trung vào các lệnh hiệu chỉnh hình.
Các lệnh cần thực hiện:
- Các lệnh hiệu chỉnh hình: OFFSET, ERASE, TRIM, EXTEND, CHAMFER, FILLET.
- Các lệnh 2D đã học.
Yêu cầu thực hiện: mở file mới, thiết lập bản vẽ đơn vị hệ mét, sau đó thực hiện các bản vẽ và lưu với tên baitap_6.dwg.
6.1. Sử dụng các lệnh hiệu chỉnh hình và các lệnh vẽ đã học
Bản vẽ AutoCAD thực hành các lệnh hiệu chỉnh cơ bản như OFFSET, ERASE, TRIM, EXTEND để chỉnh sửa đối tượng
Mẫu bài tập AutoCAD 2D ứng dụng lệnh CHAMFER và FILLET để bo góc và vát cạnh, hoàn thiện bản vẽ cơ bản
Thực hành bản vẽ AutoCAD 2D kết hợp nhiều lệnh hiệu chỉnh để tạo ra các hình dạng phức tạp và chính xác
Biến Đổi và Sao Chép Đối Tượng Hiệu Quả (Bài Thực Hành 7)
Để tăng tốc độ vẽ và quản lý đối tượng trong bản vẽ AutoCAD cơ bản, việc sử dụng các lệnh biến đổi và sao chép là không thể thiếu.
Các lệnh cần thực hiện:
- Các lệnh biến đổi và sao chép hình: MOVE, COPY, ROTATE, SCALE, MIRROR, STRETCH, ARRAY.
Yêu cầu thực hiện: mở file mới, thiết lập bản vẽ đơn vị hệ mét, sau đó thực hiện các bản vẽ và lưu với tên baitap_7.dwg.
7.1. Với các lệnh biến đổi và sao chép hình, hãy thực hiện các hình vẽ sau:
Bản vẽ AutoCAD thực hành lệnh MOVE và COPY để di chuyển và sao chép đối tượng, tối ưu quá trình thiết kế cơ bản
Mẫu bản vẽ AutoCAD 2D ứng dụng lệnh ROTATE và SCALE để xoay và thay đổi kích thước đối tượng một cách linh hoạt
Bài tập AutoCAD cơ bản sử dụng lệnh MIRROR, STRETCH và ARRAY để tạo đối xứng, kéo dài và nhân bản đối tượng
Ghi Chú và Hoàn Thiện Bản Vẽ Kỹ Thuật (Bài Thực Hành 3 & 8)
Một bản vẽ kỹ thuật hoàn chỉnh không chỉ đẹp mà còn phải đầy đủ thông tin. Phần này sẽ giúp bạn ghi kích thước và tô vật liệu cho bản vẽ.
Bài Thực Hành Số 8: Tô Vật Liệu Mặt Cắt Với Lệnh HATCH
Các lệnh cần thực hiện:
- Các lệnh vẽ hình và hiệu chỉnh đã học.
- Lệnh vẽ tuyến ảnh cho mặt cắt: HATCH.
Yêu cầu thực hiện: mở file mới, thiết lập bản vẽ đơn vị hệ mét, sau đó thực hiện các bản vẽ và lưu với tên baitap_8.dwg.
8.1. Vẽ các hình sau và gạch mặt cắt cho bản vẽ.
Bản vẽ AutoCAD 2D thực hành tô vật liệu (HATCH) cho các mặt cắt kỹ thuật, hoàn thiện chi tiết bản vẽ cơ bản
Mẫu bài tập AutoCAD cơ bản, ứng dụng lệnh HATCH để biểu diễn các loại vật liệu khác nhau trên bản vẽ kỹ thuật
Tối Ưu Hóa Quy Trình Vẽ và Kỹ Năng Chuyên Nghiệp
Để trở thành một người sử dụng AutoCAD thành thạo, không chỉ cần biết các lệnh mà còn phải tối ưu hóa quy trình làm việc và phát triển kỹ năng chuyên nghiệp:
- Vẽ nhanh và hiệu quả: Thành thạo các lệnh tắt, cách nhập lệnh và kết thúc lệnh nhanh chóng.
- Quản lý bản vẽ: Nắm bắt được cách tạo và sử dụng Block, Layer để tổ chức bản vẽ một cách khoa học.
- Triển khai bản vẽ kỹ thuật: Tự triển khai bản vẽ một cách thành thạo, đảm bảo đúng quy trình và tiêu chuẩn.
- Kỹ năng nâng cao: Tìm hiểu và sử dụng các kỹ năng vẽ nhanh như đặt lại lệnh, sử dụng Lisp, VBA, Express Tool.
- Thiết lập chuyên nghiệp: Thiết lập bản vẽ từ ban đầu bao gồm đơn vị, tỷ lệ, Layer, Text, Dim, Hatch.
- Các bước triển khai: Vẽ từ các đối tượng tổng quan đến chi tiết, theo một luồng logic.
- Công cụ Block: Sử dụng Block Attribute, Block Dynamic, Field để tăng cường tính linh hoạt cho các khối.
- Quản lý dữ liệu lớn: Sử dụng Xref, Layout, in ấn hồ sơ một cách chuyên nghiệp.
- Kinh nghiệm thực tế: Áp dụng các mẹo vẽ và kinh nghiệm sử dụng AutoCAD trong công việc thực tế.
- Bóc tách khối lượng: Có khả năng bóc tách được khối lượng từ bản vẽ đã thể hiện.
Bài Tập Ôn Luyện Tổng Hợp Bản Vẽ AutoCAD 2D
Sau khi đã làm quen và thực hành các lệnh riêng lẻ, đây là lúc để tổng hợp kiến thức và thử thách bản thân với các bài tập ôn luyện toàn diện. Các bài tập này sẽ yêu cầu bạn kết hợp nhiều lệnh vẽ và hiệu chỉnh đã học để hoàn thành các bản vẽ phức tạp hơn.
Các lệnh cần thực hiện trong bài tập ôn tập:
- Tất cả các lệnh vẽ hình và hiệu chỉnh đã học.
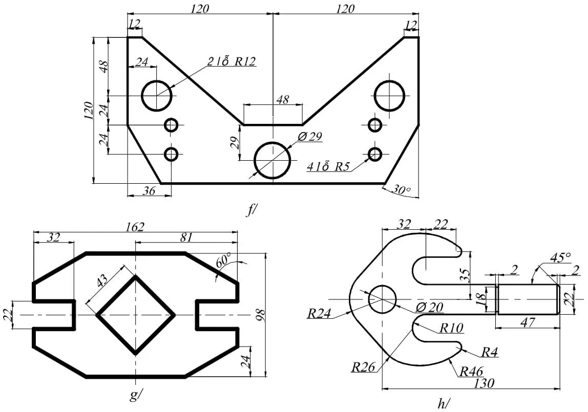
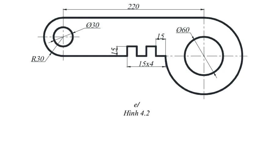
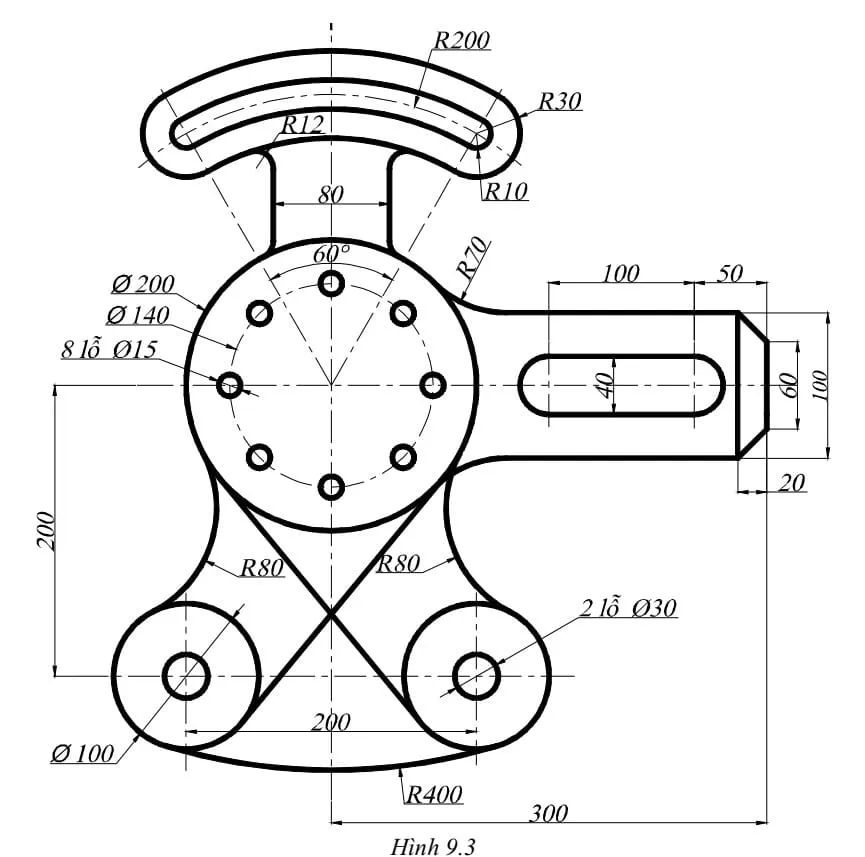
9.1. Bài tập ôn tập tổng hợp
Bài tập ôn tập AutoCAD 2D tổng hợp, giúp củng cố kiến thức về các lệnh vẽ và hiệu chỉnh bản vẽ cơ bản
Hình ảnh bài tập tổng hợp bản vẽ AutoCAD cơ bản, thử thách người học áp dụng đa dạng các lệnh đã học
Mẫu bản vẽ kỹ thuật trong phần ôn tập AutoCAD 2D, yêu cầu kỹ năng kết hợp nhiều công cụ để hoàn thành
Bản vẽ thực hành AutoCAD cơ bản, giúp người mới bắt đầu tổng hợp kiến thức về các lệnh vẽ và hiệu chỉnh
Bài tập AutoCAD 2D nâng cao kỹ năng vẽ nhanh và chính xác các đối tượng phức tạp trong bản vẽ
Hình ảnh bài tập thực hành AutoCAD 2D, tập trung vào việc tạo ra các chi tiết cơ khí hoặc kiến trúc phức tạp
Bản vẽ ôn tập AutoCAD cơ bản, giúp người học thành thạo việc sử dụng các lệnh điều chỉnh và sao chép
Mẫu bài tập AutoCAD 2D tổng hợp, rèn luyện kỹ năng vẽ và chú thích bản vẽ kỹ thuật đầy đủ
Hình ảnh bài tập cuối khóa AutoCAD 2D, đòi hỏi sự kết hợp nhuần nhuyễn các lệnh để tạo ra bản vẽ hoàn chỉnh
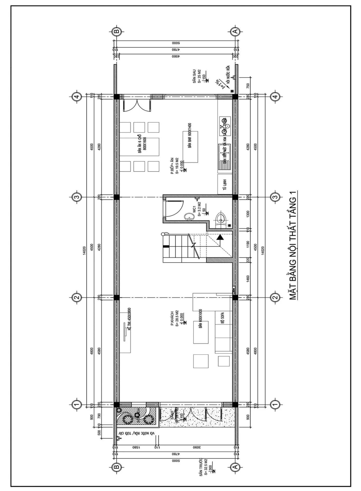
Mở Rộng Kiến Thức Với Bản Vẽ AutoCAD 3D
Sau khi đã hoàn thành các bài tập 2D và nắm vững bản vẽ AutoCAD cơ bản, bạn có thể tiếp tục khám phá thế giới thiết kế 3D. AutoCAD 3D cho phép bạn tạo ra các mô hình không gian ba chiều, mang lại cái nhìn trực quan và khả năng phân tích sâu hơn cho các dự án của mình. Các bài tập AutoCAD 3D sẽ giúp bạn làm quen với các lệnh tạo khối, bề mặt và chỉnh sửa đối tượng trong không gian 3D.
Hình ảnh minh họa bài tập AutoCAD 3D, giới thiệu các bản vẽ thiết kế không gian ba chiều cho người học nâng cao
Tài Nguyên Học Tập và Khóa Học AutoCAD Chất Lượng
Để hỗ trợ quá trình học tập và thực hành của bạn, có nhiều tài nguyên hữu ích:
- Giáo trình AutoCAD: Tìm kiếm các giáo trình tự học AutoCAD 2D và 3D mới nhất để có hướng dẫn chi tiết về các lệnh và quy trình.
- Bài tập thực hành AutoCAD: Luyện tập với tổng hợp bài tập thực hành vẽ AutoCAD 2D đầy đủ từ cơ bản cho người mới bắt đầu, và các bài tập AutoCAD 3D từ cơ bản đến nâng cao.
- Mẫu bản vẽ: Tải xuống 100+ Mẫu Bài Tập Autocad Vẽ Nhà, Cơ Khí để có thêm tài liệu tham khảo và thực hành đa dạng.





















































