Phần mềm Autocad
Tổng Hợp Các Bài Tập Thực Hành Bản Vẽ AutoCAD 2D Từ Cơ Bản Đến Nâng Cao
Để thành thạo việc tạo ra các bản vẽ AutoCAD 2D chất lượng và chuyên nghiệp, việc thực hành đều đặn là vô cùng quan trọng. Bộ bài tập này được thiết kế để giúp người học từ những bước làm quen giao diện đến việc áp dụng các lệnh phức tạp, từ đó tự tin triển khai mọi bản vẽ kỹ thuật trong công việc.
Hướng Dẫn Thực Hành Bản Vẽ AutoCAD 2D Cơ Bản
Việc nắm vững các khái niệm và lệnh cơ bản là nền tảng vững chắc để phát triển kỹ năng vẽ bản vẽ AutoCAD 2D. Các bài tập dưới đây sẽ dẫn dắt bạn qua từng bước, giúp bạn làm quen với phần mềm và các công cụ thiết yếu.
Nội Dung Các Bài Tập Thực Hành Bản Vẽ AutoCAD 2D
Các bài tập được biên soạn kỹ lưỡng, bao gồm những nội dung cốt lõi giúp bạn làm chủ phần mềm AutoCAD 2D:
- Giao diện và Thiết lập cơ bản: Hiểu rõ môi trường làm việc và cách cấu hình bản vẽ ban đầu như đơn vị, tỷ lệ.
- Thành thạo các lệnh vẽ: Sử dụng linh hoạt các lệnh vẽ cơ bản như Line, Circle, Arc, Rectangle, Polygon, Pline, Spline, Ellipse và các phương pháp nhập tọa độ.
- Lệnh hiệu chỉnh: Nắm vững các công cụ chỉnh sửa bản vẽ AutoCAD 2D như Erase, Trim, Extend, Offset, Chamfer, Fillet để chỉnh sửa hình học một cách nhanh chóng và chính xác.
- Lệnh biến đổi và sao chép: Thực hiện các thao tác Move, Copy, Rotate, Scale, Mirror, Stretch, Array để tối ưu hóa quá trình vẽ.
- Văn bản, kích thước và tô vật liệu: Sử dụng thành thạo các lệnh Text (viết chữ), Dim (ghi kích thước) và Hatch (tô vật liệu) để hoàn thiện bản vẽ kỹ thuật.
- Quản lý bản vẽ: Tạo và sử dụng hiệu quả Block, Layer để quản lý các đối tượng trong bản vẽ một cách khoa học.
- Các kỹ năng vẽ nhanh: Áp dụng các thủ thuật như đặt lại lệnh, sử dụng Lisp, VBA, Express Tool để nâng cao tốc độ.
- Triển khai bản vẽ chuyên nghiệp: Nắm rõ cấu trúc, cách trình bày một bản vẽ thiết kế đồng bộ, chuyên nghiệp, đúng quy trình, tiêu chuẩn.
- In ấn và bóc tách khối lượng: Thành thạo việc thiết lập Layout, in ấn hồ sơ và bóc tách khối lượng từ bản vẽ đã thể hiện.
Bạn có thể tham khảo thêm Giáo trình tự học AutoCAD để bổ trợ kiến thức.
BÀI THỰC HÀNH SỐ 1: Làm Quen Với Các Lệnh Vẽ Đường Thẳng
Bài tập đầu tiên giúp bạn làm quen với giao diện AutoCAD và các phương pháp vẽ đường thẳng cơ bản.
1. Các lệnh cần thực hiện trong bài tập:
- Lệnh thiết lập bản vẽ, crosshair, display.
- Sử dụng lệnh LINE và các phương pháp nhập tọa độ điểm (Decac tuyệt đối, tương đối, cực).
- Lệnh quan sát bản vẽ ZOOM; lệnh xóa đối tượng ERASE.
2. Yêu cầu thực hiện:
- Mở file mới và thiết lập bản vẽ với đơn vị hệ mét.
- Thực hiện các bản vẽ trong bài tập.
- Lưu bản vẽ vào D:/hovaten/baitap_1.dwg.
3. Bài tập thực hiện:
3.1. Vẽ các hình sau bằng lệnh Line với tọa độ Decac tuyệt đối và tương đối.
Hình ảnh bài tập thực hành vẽ bản vẽ AutoCAD 2D cơ bản với các hình khối đơn giản sử dụng lệnh Line
3.2. Sử dụng lệnh Line với tọa độ cực để vẽ các hình sau:
Ví dụ bản vẽ AutoCAD 2D thực hành vẽ hình học với tọa độ cực sử dụng lệnh Line
3.3. Sử dụng lệnh Line và các hệ tọa độ đã học để vẽ các hình sau:
Thực hành bản vẽ AutoCAD 2D nâng cao với các hệ tọa độ khác nhau để tạo hình phức tạp
BÀI THỰC HÀNH SỐ 2: Vẽ Các Đối Tượng Cơ Bản
Bài tập này tập trung vào việc tạo các hình học cơ bản như đa giác, hình chữ nhật và hình tròn, là những yếu tố thường gặp trong bản vẽ AutoCAD 2D.
4. Các lệnh cần thực hiện trong bài tập:
- Lệnh thiết lập bản vẽ, crosshair, display.
- Sử dụng lệnh LINE và các phương pháp nhập tọa độ điểm.
- Lệnh POLYGON (đa giác); RECTANG (hình chữ nhật); CIRCLE (hình tròn); TRIM (cắt bỏ).
- Lệnh quan sát bản vẽ ZOOM; lệnh xóa đối tượng ERASE.
5. Yêu cầu thực hiện:
- Mở file mới và thiết lập bản vẽ với đơn vị hệ mét.
- Thực hiện các bản vẽ trong bài tập.
- Lưu bản vẽ vào D:/hovaten/baitap_2.dwg.
6. Bài tập thực hiện:
6.1. Sử dụng lệnh Polygon để vẽ các hình đa giác sau:
Các mẫu bản vẽ AutoCAD 2D hình đa giác sử dụng lệnh Polygon trong bài tập
6.2. Sử dụng lệnh Rectangle để vẽ các hình chữ nhật sau:
Thực hành vẽ các bản vẽ AutoCAD 2D hình chữ nhật với lệnh Rectangle
6.3. Sử dụng lệnh Circle để vẽ các hình tròn và cung tròn sau:
Hình ảnh minh họa bản vẽ AutoCAD 2D các hình tròn và cung tròn sử dụng lệnh Circle
BÀI THỰC HÀNH SỐ 3: Kỹ Thuật Vẽ Chính Xác và Ghi Kích Thước
Bài tập này giới thiệu các công cụ hỗ trợ vẽ chính xác và cách ghi kích thước chuẩn cho bản vẽ AutoCAD 2D, giúp bản vẽ của bạn trở nên chuyên nghiệp và dễ hiểu.
1. Các lệnh cần thực hiện trong bài tập:
- Lệnh XLINE (đường gióng vô hạn);
- Chế độ OBJECT SNAP (truy bắt điểm); POLAR TRACKING (truy vết cực).
- DIMENSION STYLE (kiểu kích thước) và các lệnh ghi kích thước.
- Các lệnh 2D đã học ở bài trước.
2. Yêu cầu thực hiện:
- Mở file mới và thiết lập bản vẽ với đơn vị hệ mét.
- Thiết lập Layer (lớp).
- Thiết lập Dimension Style và ghi kích thước.
- Thực hiện các bản vẽ trong bài tập.
- Lưu bản vẽ vào D:/hovaten/baitap_3.dwg.
3. Bài tập thực hiện:
3.1 Vẽ các hình sau bằng hai cách: sử dụng XLINE và sử dụng Polar Tracking.
Mẫu bản vẽ AutoCAD 2D kỹ thuật có kích thước, thực hành với XLINE và Polar Tracking
3.2. Sử dụng các lệnh đã học và các chế độ truy bắt điểm để vẽ các hình sau:
Bản vẽ AutoCAD 2D chi tiết, áp dụng chế độ truy bắt điểm Object Snap và ghi kích thước
Bài tập vẽ bản vẽ AutoCAD 2D phức tạp, đòi hỏi kết hợp nhiều lệnh và kỹ thuật truy bắt điểm
3.3. Thực hiện lại bài tập 3.3. của bài tập số 1 (hình 1.3) và ghi các kích thước như yêu cầu của đề bài.
BÀI THỰC HÀNH SỐ 4: Làm Việc Với Cung Tròn và Đường Đa Tuyến
Bài tập này tập trung vào các lệnh vẽ cung tròn và đường đa tuyến (Polyline), giúp bạn tạo ra các đối tượng hình học phức tạp và linh hoạt hơn trong bản vẽ AutoCAD 2D.
1. Các lệnh cần thực hiện trong bài tập:
- Các lệnh: ARC (cung tròn) – PLINE (đường đa tuyến).
- Các lệnh vẽ hình đã học ở bài trước.
- Các lệnh quan sát bản vẽ và các lệnh 2D khác.
2. Yêu cầu thực hiện:
- Mở file mới và thiết lập bản vẽ với đơn vị hệ mét.
- Thực hiện các bản vẽ trong bài tập.
- Lưu bản vẽ vào D:/hovaten/baitap_4.dwg.
3. Bài tập:
3.1. Sử dụng lệnh ARC và các lệnh đã học để vẽ các hình sau:
Bản vẽ AutoCAD 2D minh họa cách tạo cung tròn và hình cong với lệnh ARC
3.2. Vẽ các hình sau bằng lệnh PLINE:
Thực hành vẽ các đối tượng phức tạp bằng đường đa tuyến (PLINE) trong bản vẽ AutoCAD 2D
Ví dụ bản vẽ AutoCAD 2D sử dụng lệnh PLINE để tạo hình liên tục và chỉnh sửa dễ dàng
BÀI THỰC HÀNH SỐ 5: Vẽ Các Đường Cong và Điểm
Bài tập này sẽ hướng dẫn bạn cách vẽ các đường cong mềm mại như Spline, Ellipse và cách làm việc với các điểm trong bản vẽ AutoCAD 2D, mở rộng khả năng thể hiện ý tưởng thiết kế.
1. Các lệnh cần thực hiện trong bài tập:
- Các lệnh: SPLINE (đường cong tự do), ELLIPSE (hình elip);
- Các lệnh vẽ điểm: POINT (điểm); DIVIDE (chia đối tượng); MEASURE (đo đối tượng).
- Lệnh hiển thị điểm POINT STYLE.
- Các lệnh vẽ hình đã học ở các bài trước.
2. Yêu cầu thực hiện:
- Mở file mới và thiết lập bản vẽ với đơn vị hệ mét.
- Thực hiện các bản vẽ trong bài tập.
- Lưu bản vẽ vào D:/hovaten/baitap_5.dwg.
3. Bài tập:
Sử dụng các lệnh đã học để vẽ các hình sau, tích hợp các đối tượng đường cong và điểm vào bản vẽ AutoCAD 2D của bạn:
Bản vẽ AutoCAD 2D bao gồm hình elip và đường cong Spline mềm mại
Minh họa các đối tượng Elip và Spline cùng với việc sử dụng điểm Point trong bản vẽ AutoCAD 2D
Mẫu bản vẽ AutoCAD 2D phức tạp, kết hợp Spline, Elip và các điểm chia đối tượng
Bài tập thực hành bản vẽ AutoCAD 2D với các hình học chi tiết và điểm đánh dấu
Bản vẽ AutoCAD 2D tổng hợp các lệnh vẽ điểm, đường cong và hình elip
BÀI THỰC HÀNH SỐ 6: Các Lệnh Hiệu Chỉnh Hình Nâng Cao
Để tạo ra bản vẽ AutoCAD 2D chính xác và tinh tế, việc sử dụng các lệnh hiệu chỉnh hình là không thể thiếu. Bài tập này sẽ giúp bạn làm chủ các công cụ chỉnh sửa phổ biến nhất.
1. Các lệnh cần thực hiện trong bài tập:
- Các lệnh hiệu chỉnh hình: OFFSET (tạo đối tượng song song), ERASE (xóa), TRIM (cắt), EXTEND (kéo dài), CHAMFER (vát cạnh), FILLET (bo tròn).
- Các lệnh 2D đã học.
2. Yêu cầu thực hiện:
- Mở file mới và thiết lập bản vẽ với đơn vị hệ mét.
- Thực hiện các bản vẽ trong bài tập.
- Lưu bản vẽ vào D:/hovaten/baitap_6.dwg.
3. Bài tập:
Sử dụng các lệnh hiệu chỉnh như mục 1 và các lệnh vẽ hình đã học ở những bài trước để thực hiện các bản vẽ AutoCAD 2D sau:
Thực hành chỉnh sửa bản vẽ AutoCAD 2D với các lệnh Offset, Trim, Extend
Ứng dụng các lệnh hiệu chỉnh Fillet và Chamfer để hoàn thiện bản vẽ AutoCAD 2D
Bản vẽ AutoCAD 2D nâng cao, kết hợp nhiều lệnh hiệu chỉnh để đạt độ chính xác
BÀI THỰC HÀNH SỐ 7: Biến Đổi và Sao Chép Đối Tượng
Bài tập này tập trung vào các lệnh biến đổi và sao chép, giúp bạn tái sử dụng và sắp xếp các đối tượng một cách hiệu quả trong bản vẽ AutoCAD 2D, tiết kiệm thời gian và công sức.
1. Các lệnh cần thực hiện trong bài tập:
- Các lệnh biến đổi và sao chép hình: MOVE (di chuyển), COPY (sao chép), ROTATE (xoay), SCALE (tỷ lệ), MIRROR (đối xứng), STRETCH (kéo dài/co giãn), ARRAY (sao chép mảng).
2. Yêu cầu thực hiện:
- Mở file mới và thiết lập bản vẽ với đơn vị hệ mét.
- Thực hiện các bản vẽ trong bài tập.
- Lưu bản vẽ vào D:/hovaten/baitap_7.dwg.
3. Bài tập:
Với các lệnh biến đổi và sao chép hình, cùng với các lệnh đã học, hãy thực hiện các bản vẽ AutoCAD 2D sau:
Sử dụng lệnh Move và Copy để sắp xếp các thành phần trong bản vẽ AutoCAD 2D
Thực hành xoay (Rotate) và phóng to/thu nhỏ (Scale) các đối tượng trong bản vẽ AutoCAD 2D
Áp dụng lệnh Mirror và Array để tạo ra các bản vẽ AutoCAD 2D đối xứng và lặp lại
BÀI THỰC HÀNH SỐ 8: Tạo Mặt Cắt và Tô Vật Liệu (Hatch)
Bài tập cuối cùng này sẽ hướng dẫn bạn cách tạo mặt cắt và tô vật liệu (Hatch) cho bản vẽ, đây là bước quan trọng để thể hiện chi tiết vật liệu và cấu trúc của đối tượng trong bản vẽ AutoCAD 2D.
1. Các lệnh cần thực hiện trong bài tập:
- Các lệnh vẽ hình và hiệu chỉnh đã học.
- Lệnh vẽ tuyến ảnh cho mặt cắt: HATCH (tô vật liệu).
2. Yêu cầu thực hiện:
- Mở file mới và thiết lập bản vẽ với đơn vị hệ mét.
- Thực hiện các bản vẽ trong bài tập.
- Lưu bản vẽ vào D:/hovaten/baitap_8.dwg.
3. Bài tập:
Vẽ các hình sau bằng các lệnh đã học và gạch mặt cắt cho bản vẽ, nâng cao độ chính xác và tính thẩm mỹ của bản vẽ AutoCAD 2D:
Bản vẽ AutoCAD 2D mặt cắt kỹ thuật với các mẫu Hatch khác nhau, biểu thị vật liệu
Minh họa kỹ thuật tô vật liệu (Hatch) trên bản vẽ AutoCAD 2D, cải thiện tính chuyên nghiệp
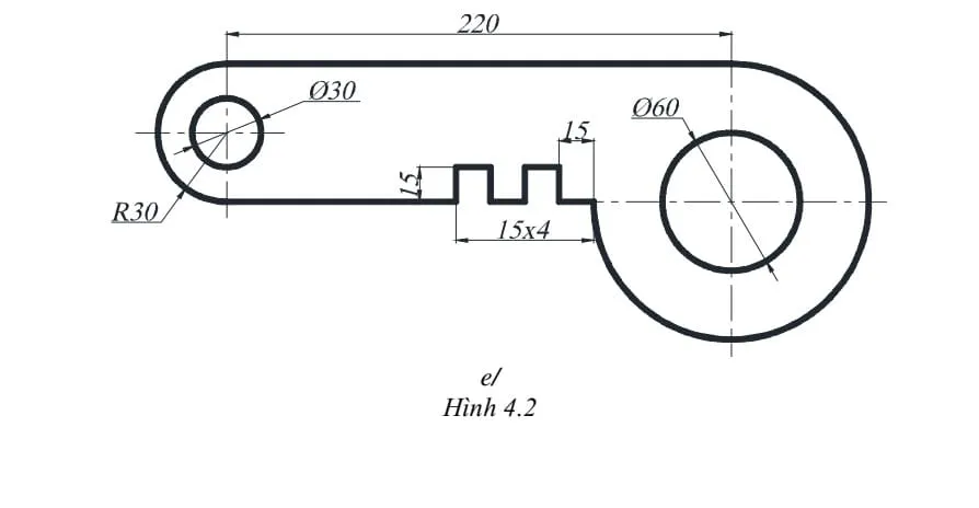
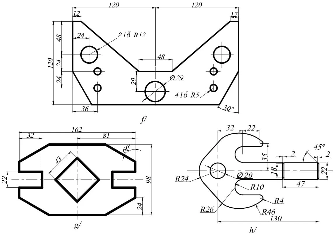
BÀI ÔN TẬP: Tổng Hợp Kỹ Năng Vẽ Bản Vẽ AutoCAD 2D
Các bài tập ôn tập này được tổng hợp để bạn củng cố toàn bộ kiến thức và kỹ năng đã học, từ các lệnh vẽ cơ bản đến các kỹ thuật hiệu chỉnh và quản lý bản vẽ phức tạp.
1. Các lệnh cần thực hiện trong bài tập:
Các lệnh vẽ hình và hiệu chỉnh đã học.
2. Bài tập:
Thực hiện các bản vẽ AutoCAD 2D dưới đây, áp dụng tất cả các kiến thức và lệnh bạn đã học để hoàn thành một cách chính xác và hiệu quả.
Bài tập ôn tập bản vẽ AutoCAD 2D tổng hợp, giúp củng cố kỹ năng vẽ cơ bản
Mẫu bài tập bản vẽ AutoCAD 2D ôn tập các lệnh vẽ và hiệu chỉnh hình học
Thực hành bản vẽ AutoCAD 2D ôn tập các hình phức tạp, kết hợp nhiều công cụ
Bản vẽ AutoCAD 2D ôn tập chuyên sâu với các chi tiết kỹ thuật và kích thước
Bài tập củng cố kỹ năng vẽ bản vẽ AutoCAD 2D, áp dụng lệnh chỉnh sửa và sao chép
Mẫu bài tập ôn tập bản vẽ AutoCAD 2D về các đối tượng cong và phức tạp
Thực hành bản vẽ AutoCAD 2D ôn tập, chú trọng đến độ chính xác và chi tiết
Tổng hợp các kỹ năng qua bài tập ôn tập bản vẽ AutoCAD 2D đa dạng hình khối
Bài tập cuối khóa ôn tập bản vẽ AutoCAD 2D, kiểm tra khả năng ứng dụng các lệnh
Việc hoàn thành các bài tập thực hành bản vẽ AutoCAD 2D này không chỉ giúp bạn làm quen với các lệnh mà còn rèn luyện tư duy thiết kế, kỹ năng đọc hiểu bản vẽ và khả năng ứng dụng phần mềm vào thực tế công việc. Hãy kiên trì thực hành để đạt được hiệu quả tốt nhất!
Bạn có thể tải xuống thêm 100+ Mẫu Bài Tập Autocad Vẽ Nhà, Cơ Khí để nâng cao kỹ năng.





















































